GCS型低压抽出式开关柜(以下简称装置)是两部联合设计组根据行业主管部门、广大电力用户及设计单位的要求,为满足不断发展的电力市场对增容、计算机接口、动力集中控制、方便安装维修、缩短事故处理时间等需要,本着安全、经济、合理、可靠的原则设计研制出的符合国情、具有较高技术性能指标、能够适应电力市场发展需要并可与现在引进产品竞争的低压抽出式开关柜。产品具有分断、通接能力高、动热稳定性好,电力方案灵活、组合方便、系列实用性强、防护等级高等特点,可以作为低压抽出式开关柜的换代产品使用。
能提高转接件的热容量,较大幅度的降低由于转接件的温升给接插件、电缆头、间隔板带来的附加温升。
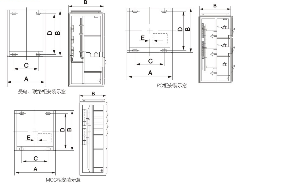
功能单元之间,隔室之间的分隔清晰、可靠、不因某一单元的故障而影响其它单元工作,使故障局限在小范围内。
母线平置式排列使装置的动、热稳定性好,能承受80/176kA短路电流的冲击。
MCC柜单柜的回路数量多至44回路,充分考虑了大单机容量发电厂,石化系统等行业自动化电动门/机群的需要。
与外部电缆连接在电缆隔室中完成,电缆可以上下进出。零序电流互感器置电缆隔室内,使安装维修方便。
同一电源配电系统,可以通过限流电抗器匹配限制短路电流,稳定母线电压在一定的数值,还可部分降低对元器件短路强度的要求。
抽屉单元有足够数量的二次接插件(1单元及以上为32对,1/2单元为20对),可满足计算机接口和自控回路对接点的要求。
| 项目 | 单位 | 数据 | |
| 主电路额定电压 | V | AC 380(400)、(660) | |
| 辅助电路额定电压 | V | AC 220、380(400) DC 110、220 | |
| 额定频率 | Hz | 50(60) | |
| 额定绝缘电压 | V | 600(1000) | |
| 额定电流 | 水平母线 | A | ≤5000 |
| 额定电流 | 垂直母线(MCC) | A | 1000 |
| 母线额定短时耐受电流(1s) | kA | 50、80 | |
| 母线额定峰值耐受电流(0.1s) | kA | 105、176 | |
| 工频试验电压(1min) | 主电路 | V | 2500 |
| 工频试验电压(1min) | 辅助电路 | V | 1760 |
| 母线 | 三相四线制 | A、B、C、PEN | |
| 母线 | 三相五线制 | A、B、C、PE、N | |
| 防护等级 | IP30、IP40 | ||

| 通用柜代号 | A | B | C | D | E | F×G |
| GCS-TG1010-2 | 1000 | 1000 | 850 | 956 | 60 | 400×400 |
| GCS-TG0810-2 | 800 | 1000 | 650 | 956 | 160 | 400×400 |
| GCS-TG1008-2 | 1000 | 800 | 850 | 756 | 60 | 400×400 |
| GCS-TG0808-2 | 800 | 800 | 650 | 756 | 160 | 400×400 |