GG-1A(F)型固定式户内交流金属封闭开关设备(以下简称“开关设备”)适用于额定电压为3~10kV,额定频率为50Hz的三相交流单母线和单母线旁路系统中,作为接受和分配电能之用。
开关设备内主开关根据用户需求可配用ZN28(A)系列真空断路器。

| 项目 | 单位 | 数据 |
| 额定电压 | V | 3.6、7.2、12 |
| 额定电流 | A | 630-3150 |
| 额定短路开断电流 | kA | 20、25、31.5、40 |
| 额定短时耐受电流 | kA | 20、25、31.5、40 |
| 额定峰值耐受电流 | kA | 50、63、80、100 |
| 额定短路关合电流 | kA | 50、63、80、100 |
| 额定短路持续时间 | s | 4 |
| 母线系统 | 单母线或单母线带旁路系统 | |
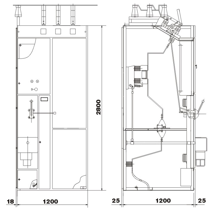
| 外形尺寸(宽W×深L×高H) | mm | 1200×1200(1800)×2800 |
